Die Entwicklung des Schulgebäudes

1530 findet sich die erste Erwähnung einer Schule in dem Bericht des damaligen Pfarrers.

Erstes in der Chronik erwähnte Schulhaus ist das Haus Nr. 121 gegenüber dem Pfarrhof. Auf Grund der hohen Schülerzahlen erweiterte man 1891 im Haus Nr. 15.

Der 1. Weltkrieg machte Planungen für einen Schulbau zunichte und somit begann erst 1927 der Bau der Volks- und Hauptschule. Sie wurde am 1.9.1928 eröffnet und zählte damals zu den modernsten Gebäuden des Landes. Sie war eine der wenigen Schulen, die einen eigenen Turnsaal mit Bad und einer Dampfheizung besaß. Dieses Gebäude besteht auch heute noch und befindet sich Am Markt 25.

 

Bau des Schulgebäudes am Schlossplatz 4

Mit dem Bau der neuen Hauptschule in Orth wurde die bislang bestehende Raumnot behoben.

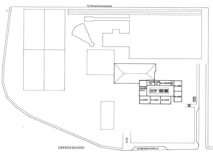
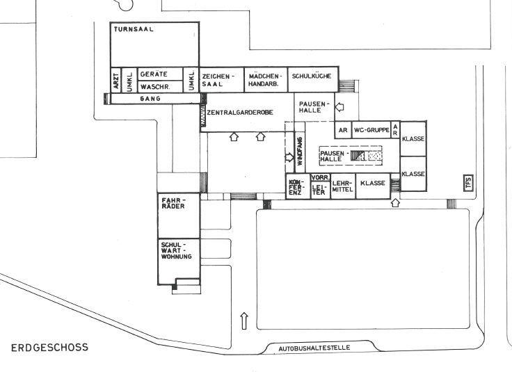
Am 29.6.1970 wurde der Beschluss zum Neubau der Hauptschule Orth/Donau gefasst. Das Schulgebäude am Schlossplatz 4 wurde in den Jahren 1973-1976 erbaut und am 26.6.1976 eröffnet.

Nach über 40 jähriger Nutzung war das Gebäude „in die Jahre gekommen“ und so wurde am 11. September 2019 nach jahrelangen Verhandlungen vom Schulausschuss der NMS Orth an der Donau die Generalsanierung des gesamten Schulgebäudes einstimmig beschlossen. Mit einem Ideenwettbewerb wurde danach ein zukunftsorientiertes, innovatives und standortsicherndes Projekt ermittelt. Den Realisierungswettbewerb gewann das Architektenteam Stubenvoll.

 

Generalsanierung 2021-2022

Das in Fuchsenbigl beheimatete Architektenteam Stubenvoll hat es sich zum Ziel gesetzt die vorhandene Substanz mit Ausnahme des Turnsaals zu erhalten bzw. umzubauen und zu ergänzen (neuer Turnsaal und neues Stiegenhaus). Die Schule soll den heutigen Ansprüchen des geforderten Nutzungskonzeptes, den hohen thermischen, den flucht- und brandschutztechnischen Ansprüchen angepasst werden und ein zeitgemäßes Erscheinungsbild bieten.

Durch die maximale Erhaltung der bestehenden Rohbaustruktur und die Minimierung der notwendigen Neubaufläche wird bei der Herstellung ein Maximum an Wirtschaftlichkeit erreicht. Die gesamte Gebäudefläche wird hochgradig thermisch saniert, was eine große Verringerung des Heizwärmebedarfs und somit im Lebenszyklus des Gebäudes eine massive Senkung der Energiekosten zur Auswirkung hat.

Der Spatenstich erfolgte am 21.7.2021.

Der Umbau wurde in zwei Etappen umgesetzt.

In der ersten Bauphase (Schulende 2021 bis Osterferien 2022) wurde der südöstliche Baukörper saniert und mit einem neuen Stiegenhaus ergänzt.

Der Schulbetrieb (acht Klassen und die Nachmittagsbetreuung) fand während der 1. Bauphase (September 2021-April 2022) provisorisch in einem Containerdorf am Sportplatz und im westlichen Teil das Altgebäudes statt.

 Der Schulbetrieb fand nach den Osterferien (20.4.2022) im südöstlichen, bereits sanierten Baukörper mit seinen drei Ebenen statt.

In der zweiten Bauphase (Osterferien 2022 bis Sommer 2023) wurde der Turnsaal abgerissen und erneuert, der mittlere Baukörper saniert und der Zugangsbereich erneuert.

Pünktlich mit Schulbeginn 2023/24 waren die Sanierungsarbeiten soweit abgeschlossen, dass das gesamte, neu sanierte Schulgebäude wieder genutzt werden konnte. Auch wurde die Zeit der Sanierung vom Schulteam genutzt, um eine neue Corporate Identity zu erstellen, vor allem sichtbar am neunen Schullogo und der neuen Homepage.